Skip to main content
Verkocht onder voorbehoud€ 425.000 k.k.
Verkocht onder voorbehoud
Prinses Beatrixstraat 18, Benthuizen
  • Type woning: Tussenwoning
  • Bouwjaar: 1968
  • Aantal kamers: 6
  • Aantal slaapkamers: 5
  • Buitenruimte: Achtertuin op het westen
  • 123 m2Perceeloppervlakte
  • 115 m2Woonoppervlakte
  • 371 m3Inhoud
Welkom op de Prinses Beatrixstraat 18! Deze aantrekkelijke tussenwoning beschikt over een ruime woonkamer, vijf (mogelijkheid voor zes) slaapkamers en een zonnige tuin op het westen.

De hardhouten kozijnen zijn voorzien van HR beglazing en het dak is geïsoleerd. De woning heeft energielabel C, is gebouwd in 1968 en beschikt over circa 115 m² woonoppervlakte en 123 m² perceeloppervlakte.

Benthuizen is wonen in een dorp met de voorzieningen op loopafstand. Zoekt u het liever iets groter? Zoetermeer, Gouda, Leiden en Alphen aan den Rijn zijn allemaal binnen 20 minuten bereikbaar. In de directe omgeving kunt u voor een heerlijke wandeling terecht in het Bentwoud en in de zomermaanden kunt u genieten van het strandje aan Noord Aa.

We vertellen u graag meer over de indeling van de woning:

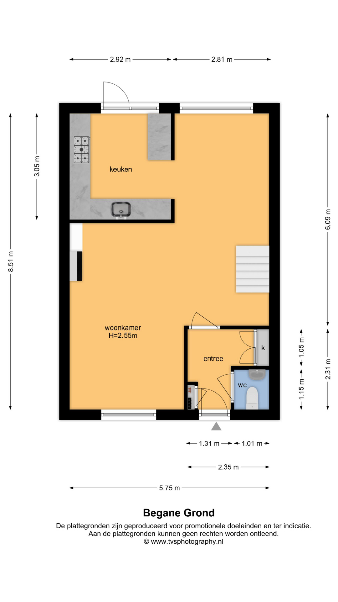
Via de voortuin komt u in de hal welke toegang geeft tot de woonkamer, garderobe, meterkast, vaste kast en toiletruimte met fonteintje.

De woonkamer is door de grote raampartijen aan de voor- en achterzijde heerlijk licht. Er is voldoende ruimte voor het plaatsen van een zithoek en eethoek.

De halfopen keuken bevindt zich aan de achterzijde en is voorzien van diverse inbouwapparatuur zoals een koelkast, vaatwasser, oven, gaskookplaat en afzuigkap. Daarnaast is er voldoende kastruimte om keukenspullen op te bergen. Tevens treft u hier de wasmachineaansluiting.

Vanuit de keuken heeft u toegang tot de achtertuin. De voor- en achtertuin zijn grotendeels voorzien van bestrating. Van ’s morgens vroeg tot ’s avonds laat kunt u hier van de zon genieten. Achterin de tuin staat een ruime stenen berging en er is een achterom. Het zonnescherm zorgt op warme dagen voor schaduw.

Door middel van de trap in de woonkamer bereikt u de eerste verdieping welke toegang biedt tot de vier slaapkamers en de badkamer. Twee slaapkamers zijn voorzien van een vaste kast met schuifdeuren. De badkamer bevindt zich in het midden van de verdieping en is ingericht met een douche, wastafel en toilet. Wilt u graag een ruimere badkamer? Dan zou u een slaapkamer kunnen inrichten als badkamer. Van de huidige badkamer kunt u een toiletruimte of wasruimte maken.

Via de vaste trap bereikt u de tweede verdieping. Hier treft u een open ruimte die nog vrij ingedeeld kan worden. De dakkapel aan de achterzijde zorgt al voor extra ruimte en lichtinval. De c.v.-ketel (Remeha uit 2015) staat in een kast opgesteld. Wilt u deze verdieping uitbreiden? Door het plaatsen van een dakkapel aan de voorzijde (vergunning plichtig) kunt u hier twee kamers creëren. Onder de schuine kap is er bergruimte. Een tweede verdieping met mogelijkheden!

Bent u nieuwsgierig geworden en ziet u zichzelf hier wonen? Bel ons voor een bezichtiging, wij vertellen u graag nog meer over deze leuke woning.

Deze vrijblijvende objectinformatie is met de meeste zorg samengesteld, maar voor de juistheid daarvan kunnen wij geen aansprakelijkheid aanvaarden. Ook kan aan de vermelde gegevens geen enkel recht worden ontleend. Alle informatie is enkel en alleen bedoeld voor de presentatie van het object en niet meer dan een uitnodiging tot het doen van een bod. Eventueel bijgevoegde plattegronden zijn slechts indicatief.

De woning is ingemeten volgens de branchebrede Meetinstructie, welke is gebaseerd op de NEN2580. De Meetinstructie is bedoeld om een meer eenduidige manier van meten toe te passen voor het geven van een indicatie van de gebruiksoppervlakte. De Meetinstructie sluit verschillen in meetuitkomsten niet volledig uit, door bijvoorbeeld interpretatieverschillen, afrondingen of beperkingen bij het uitvoeren van de meting.
Back to top