Skip to main content
Verkocht€ 450.000 k.k.
Verkocht
Kruiskruid 24, Boskoop
  • Type woning: Hoekwoning
  • Bouwjaar: 1975
  • Aantal kamers: 6
  • Aantal slaapkamers: 5
  • Buitenruimte: Achtertuin op het zuiden
  • 217 m2Perceeloppervlakte
  • 129 m2Woonoppervlakte
  • 396 m3Inhoud
Op zoek naar een verrassende gezinswoning? Welkom in deze hoekwoning, waar licht en ruimte perfect samenkomen. De woning beschikt over een ruime woonkamer met open keuken, vijf slaapkamers, veel bergruimte en een fijne, extra brede tuin met veel privacy. En dat alles op een kindvriendelijke locatie, omgeven door veel groen!

Wat deze woning extra aantrekkelijk maakt, is de ruimte zowel binnen als buiten (circa 129 m² woonoppervlak en 217 m² eigen grond) én de prettige sfeer. Op de tweede verdieping zijn twee dakkapellen geplaatst, waardoor hier volwaardige slaapkamers zijn ontstaan.

We geven u graag alvast een beeld van de indeling:

Voortuin met toegang tot de aangebouwde berging met veel praktische opbergruimte.

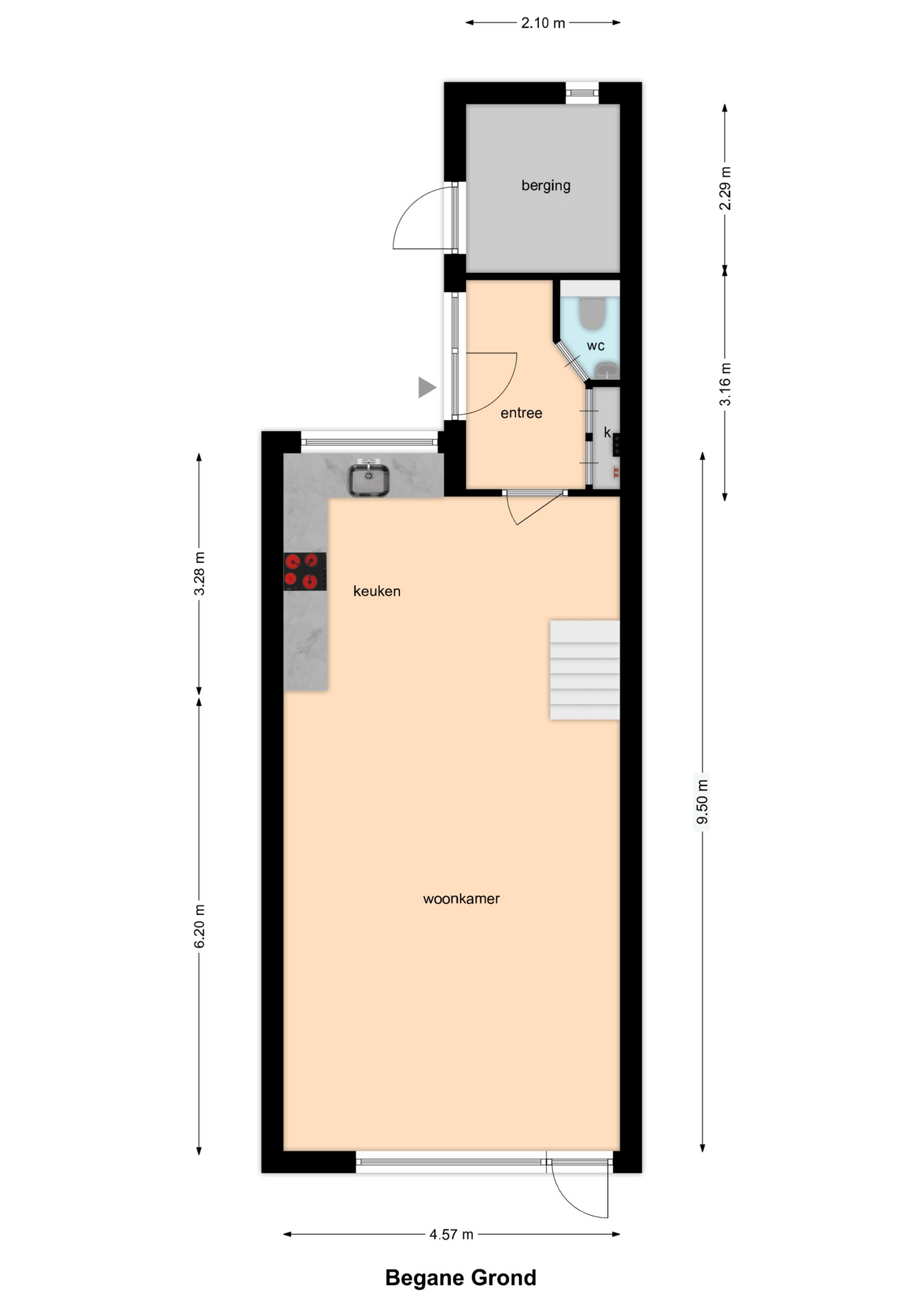
Begane grond
U komt binnen in de lichte hal met garderobekast, toiletruimte en meterkast. Vervolgens stapt u de ruime woonkamer met open keuken in. De keuken is aan de voorzijde gesitueerd, heeft leuk groen uitzicht en is van alle gemakken voorzien. Zo is er een inductiekookplaat, afzuigkap, oven, vaatwasser, koelkast en vriezer. Daarnaast is er voldoende kastruimte. Een fijne plek om te koken!

De woonkamer is door de grote raampartij heerlijk licht en voorzien van een pvc vloer met vloerverwarming. Via de loopdeur bereikt u de achtertuin, waar u de gehele dag kunt genieten van de mooie beplanting en de privacy. De tuin is door de hoekligging extra breed en ligt op het zuiden. Er is een achterom en aan de zijkant van de woning is een extra houten berging geplaatst.

Eerste verdieping
Via de open trap in de woonkamer bereikt u de overloop die toegang geeft tot de drie slaapkamers en de badkamer. Aan de voorzijde bevindt zich een woningbrede slaapkamer met een inloopkast. De slaapkamers aan de achterzijde zijn eveneens van een mooi formaat. De inpandige badkamer is netjes onderhouden en ingericht met een wastafel met meubel, ligbad met douche en toilet. Tevens zijn hier de aansluitingen voor de wasmachine en droger te vinden.

Tweede verdieping
Deze verdieping is vergroot door middel van het plaatsen van twee grote dakkapellen. Beide slaapkamers zijn hierdoor ruim. In de slaapkamer aan de voorzijde is de cv-ketel (Remeha uit 2021) geplaatst. In de slaapkamer aan de achterzijde is vaste kastruimte te vinden. Via de overloop is de bergvliering bereikbaar.

De woning heeft energielabel C. Er is dak- en muurisolatie toegepast en de houten kozijnen zijn voorzien van dubbel/HR+ glas.

De ruimte die de woning te bieden heeft is ideaal voor gezinnen. Uiteraard ook perfect geschikt voor iemand die opzoek is naar een werkplek, een logeerkamer of extra speelruimte voor de kinderen. Hier is het allemaal mogelijk!

Bent u enthousiast geworden en ziet u zichzelf hier al wonen? Bel dan snel voor het maken van een persoonlijke bezichtiging.

Deze vrijblijvende objectinformatie is met de meeste zorg samengesteld, maar voor de juistheid daarvan kunnen wij geen aansprakelijkheid aanvaarden. Ook kan aan de vermelde gegevens geen enkel recht worden ontleend. Alle informatie is enkel en alleen bedoeld voor de presentatie van het object en niet meer dan een uitnodiging tot het doen van een bod. Eventueel bijgevoegde plattegronden zijn slechts indicatief.

De woning is ingemeten volgens de branchebrede Meetinstructie, welke is gebaseerd op de NEN2580. De Meetinstructie is bedoeld om een meer eenduidige manier van meten toe te passen voor het geven van een indicatie van de gebruiksoppervlakte. De Meetinstructie sluit verschillen in meetuitkomsten niet volledig uit, door bijvoorbeeld interpretatieverschillen, afrondingen of beperkingen bij het uitvoeren van de meting.
Back to top