Skip to main content
Verkocht€ 399.000 k.k.
Verkocht
Ridderbuurt 80, Boskoop
  • Type woning: Twee onder een kapwoning
  • Bouwjaar: 1920
  • Aantal kamers: 5
  • Aantal slaapkamers: 3
  • Buitenruimte: Achtertuin op het oosten
  • 57 m2Perceeloppervlakte
  • 124 m2Woonoppervlakte
  • 363 m3Inhoud
Wilt u elke dag genieten van voorbijvarende boten en het prachtige uitzicht over de Gouwe, gewoon vanuit uw woonkamer? Dat kan!

Deze instapklare twee-onder-een-kapwoning is gebouwd in 1920 en is de afgelopen jaren gemoderniseerd, heeft een woonoppervlakte van circa 124 m² en energielabel C.

De woning bevindt zich op korte afstand van het gezellige dorpscentrum van Boskoop. Voorzieningen zoals supermarkten, scholen, speeltuinen en openbaar vervoer zijn dichtbij huis. Dankzij de gunstige ligging zijn ook de uitvalswegen richting Den Haag, Utrecht, Leiden en Amsterdam eenvoudig bereikbaar.

De indeling is als volgt:

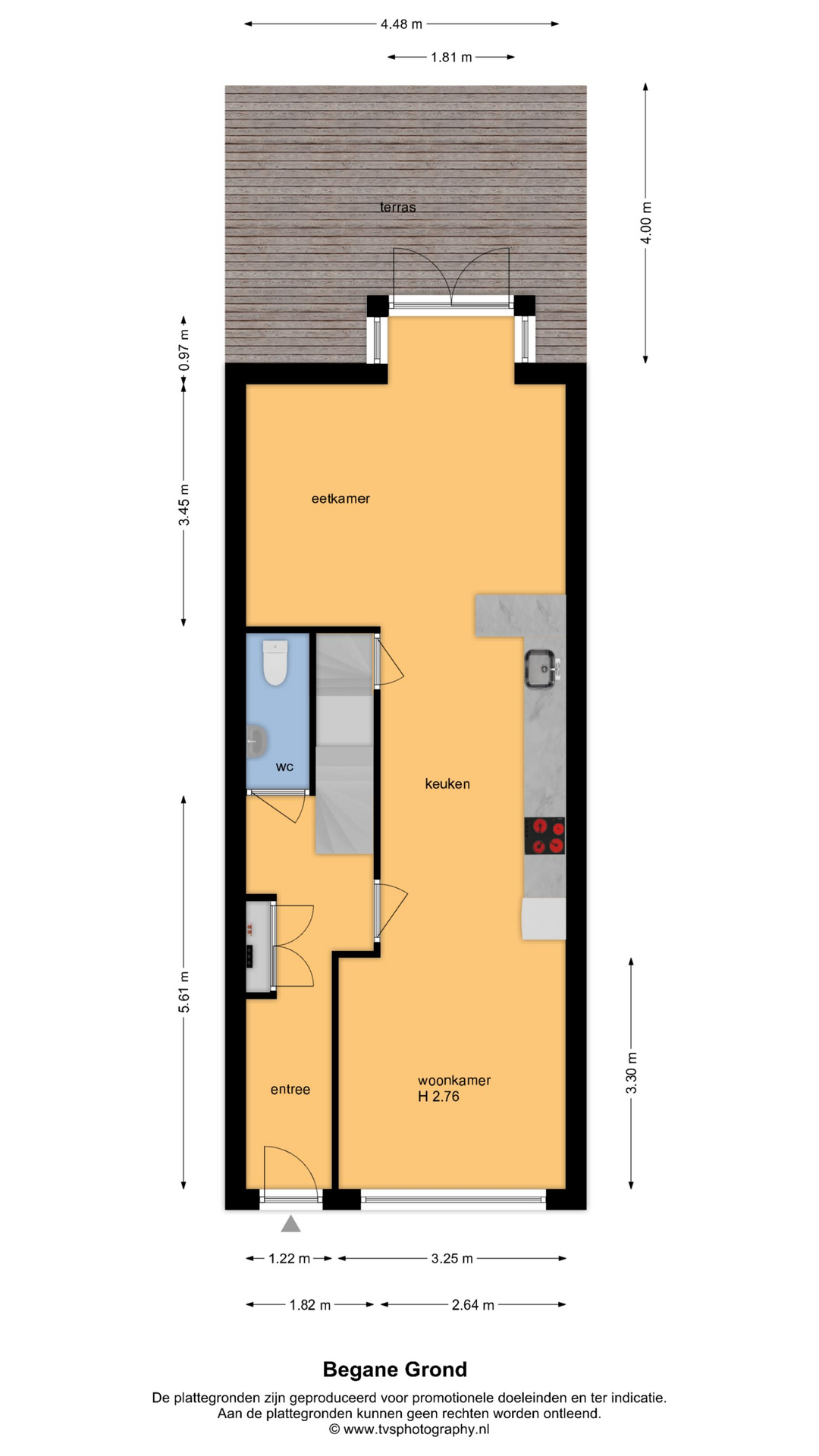
Entree, hal met meterkast, modern toilet met fonteintje en toegang tot de woonkamer en eerste verdieping.

De sfeervolle woonkamer heeft fantastisch uitzicht over de Gouwe, een fijne plek om naar de voorbijvarende boten te kijken. De woonkamer is licht en tijdens de warme dagen zorgt het elektrische screen aan de voorzijde voor schaduw. De gehele begane grond is voorzien van vloerverwarming, er ligt een mooie pvc-vloer en de wanden zijn afgewerkt met behang.

De open keuken verbindt de woonkamer en eethoek. De matzwarte keuken is modern en voorzien van een vaatwasser, inductiekookplaat, afzuigkap, oven en een Quooker. Vanuit de keuken is er toegang tot het souterrain.

Aan de achterkant is in 2022 een nieuwe pui geplaatst welke zorgt voor veel lichtinval. Er is een ruime eethoek gecreëerd en u stapt zo naar buiten het terras op. Een heerlijke plek voor een kopje koffie in de ochtendzon.

Eerste verdieping:
Ruime overloop met toegang tot de slaapkamers, het toilet en de badkamer. Deze gehele verdieping (behalve de badkamer) is in 2023 verbouwd en opnieuw ingedeeld.

De grootste slaapkamer aan de achterzijde geeft toegang tot het balkon. Er zijn mooie inbouwkasten gerealiseerd waardoor er voldoende opbergruimte is.

Aan de voorzijde zijn twee gelijke slaapkamers, beide van goed formaat en voorzien van elektrische screens. Ook vanuit deze kamers kunt u genieten van het uitzicht over de Gouwe.

Op de gehele verdieping ligt een doorgelegde pvc-vloer en de wanden zijn afgewerkt met stuc en behang.

De badkamer is geheel betegeld en ingericht met een ligbad met douche, wastafelmeubel en designradiator.

Vanaf de overloop is er ook toegang tot het aparte toilet en een praktische bergkast, hier is de mechanische ventilatiebox opgesteld, maar is er daarnaast ook nog voldoende opbergruimte.

Het souterrain is een fijne extra woonruimte welke voor allerlei doeleinden kan worden gebruikt. Deze ruimte is nu in gebruik als kantoor en wasruimte. Tevens is hier de CV-ketel opgesteld (Nefit 2017). Verder heeft u vanaf hier toegang tot de ruime berging en schuur.

Natuurlijk kunt u in deze ruimte ook een bedrijf aan huis, een speelkamer, extra slaapkamer of hobbyruimte creëren. De ruimte wordt verwarmd door radiatoren en de gemiddelde stahoogte is 1.96 meter. Het souterrain is meegerekend in de woonoppervlakte vanwege de woonfunctie. Vanuit de schuur is er toegang tot de achtertuin en er is een achterom aanwezig via de gezamenlijke poort.

Wij nodigen u van harte uit om een kijkje te komen nemen bij deze leuke woning met unieke ligging en prachtig uitzicht!

Deze vrijblijvende objectinformatie is met de meeste zorg samengesteld, maar voor de juistheid daarvan kunnen wij geen aansprakelijkheid aanvaarden. Ook kan aan de vermelde gegevens geen enkel recht worden ontleend. Alle informatie is enkel en alleen bedoeld voor de presentatie van het object en niet meer dan een uitnodiging tot het doen van een bod. Eventueel bijgevoegde plattegronden zijn slechts indicatief.

De woning is ingemeten volgens de branchebrede Meetinstructie, welke is gebaseerd op de NEN2580. De Meetinstructie is bedoeld om een meer eenduidige manier van meten toe te passen voor het geven van een indicatie van de gebruiksoppervlakte. De Meetinstructie sluit verschillen in meetuitkomsten niet volledig uit, door bijvoorbeeld interpretatieverschillen, afrondingen of beperkingen bij het uitvoeren van de meting.
Back to top