Skip to main content
Verkocht€ 650.000 k.k.
Verkocht
Pinksterbloem 11, Hazerswoude-Dorp
  • Type woning: Hoekwoning
  • Bouwjaar: 2014
  • Aantal kamers: 6
  • Aantal slaapkamers: 5
  • Buitenruimte: Achtertuin op het oosten
  • 208 m2Perceeloppervlakte
  • 147 m2Woonoppervlakte
  • 485 m3Inhoud
Verrassende, uitgebouwde 6-kamer hoekwoning met een zonnige tuin en vrij uitzicht. Gelegen op een perceel van 208 m² aan de rand van de jonge wijk “Weidelanden”.

De moderne ca. 147 m² grote woning is gebouwd in 2014 en is heerlijk licht door de grote raampartijen in de gehele woning. Ook aan de duurzaamheid is gedacht, zo is de woning voorzien van vloerverwarming op de begane grond, kunststof kozijnen met HR++ beglazing en dak-, muur- en vloerisolatie.

De ligging midden in het dorp in de woonwijk “Weidelanden” is ideaal te noemen. Kindvriendelijk, op loopafstand van winkels, scholen, openbaar vervoer en sportvoorzieningen, maar ook op korte afstand van uitvalswegen naar steden als Leiden, Den Haag, Utrecht en Amsterdam.

Wij vertellen u graag meer over de indeling en afwerking van de woning.

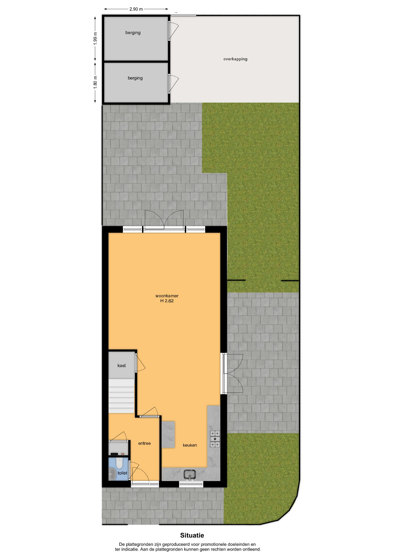
Begane grond: Ruime hal met toegang tot de meterkast, het moderne toilet en de trap naar de eerste verdieping.
De lichte en ruime woonkamer voelt direct warm en uitnodigend aan dankzij de grote raampartijen. Openslaande deuren zorgen voor een naadloze overgang naar de zonnige zij- en achtertuin. Daarnaast biedt een handige trapkast extra opbergruimte.

Aan de voorzijde van de woning bevindt zich de open keuken met voldoende werk- en kastruimte. De keuken is compleet uitgerust met een 6-pits gasfornuis van Boretti, een afzuigschouw, een vaatwasser (2025), een koelkast en een vriezer. Het groene uitzicht naar buiten maakt deze keuken tot een heerlijke plek om te koken.

Nagenoeg de gehele begane grond is voorzien van een PVC vloer met comfortabele vloerverwarming en de wanden zijn gedeeltelijk behangen en geschilderd.

Eerste verdieping: Op deze verdieping bevinden zich drie ruime slaapkamers en een badkamer.

De master bedroom aan de voorzijde is met het uitzicht een echte eyecatcher. De ruimte en het aantal ramen maken het tot een fijne kamer met veel lichtinval. Daarnaast is er volop kastruimte. De twee overige slaapkamers van de verdieping hebben eveneens veel lichtinval en beschikken over een goede ruimte.

De badkamer is voorzien van een ligbad, douche, wastafel met meubel, kolomkast, een zwevend toilet, een spiegelkast en een radiator.

Tweede verdieping: De vaste trap leidt naar een royale zolderverdieping, waar het opvallende driehoekige zijraam direct in het oog springt. Dit zorgt voor een veelzijdige lichte ruimte, perfect als werkplek of hobbykamer in te richten. Met een plafondhoogte van circa 4,40 meter voelt deze ruimte nog ruimer aan.

Aan de achterzijde bevindt zich een ruime slaapkamer. Aan de voorzijde is nog een extra slaapkamer, welke nu is ingericht als praktische wasruimte met kledingkast.

Tevens bevindt zich in de kamer achter een deur de stookruimte met de cv-combiketel (Intergas bj. 2014) en mechanische ventilatiebox.

Boven de kamer aan de voorzijde is bergruimte gecreëerd. Met een hoogte van circa 1,80 meter maakt het een ideale plek voor het opbergen van koffers, seizoensgebonden spullen en andere zaken die je niet dagelijks nodig hebt.

Op deze en de eerste verdieping is de vloer voorzien van laminaat.

Tuin: Door de hoekligging is het een heerlijke plek om te ontspannen en te genieten van de zon en schaduw. Aan de voorzijde geniet u van het vrije uitzicht daarentegen biedt de achtertuin veel privacy.

De tuin is onderhoudsvriendelijk aangelegd met een combinatie van beplanting, bestrating en gras. Achterin de tuin bevindt zich een overkapping met o.a. twee houten bergingen. De tuin is daarnaast gemakkelijk toegankelijk via een achterom.

Samengevat een ruime en vrij gelegen tuin waar u rustig kunt zitten, maar ook perfect voor spelende kinderen of een gezellige barbecue met vrienden.

Waarom kiezen voor deze woning?
- Woning uit 2014 met een woonoppervlak van ca. 147 m² en een perceeloppervlak van 208 m²;
- Volledig geïsoleerd (HR++ glas, dak-, vloer- en muurisolatie) en onderhoudsarme kunststof kozijnen;
- In 2023 zijn er acht zonnepanelen op het dak van de overkapping geplaatst;
- Vloerverwarming op de begane grond;
- Gelegen in een rustige en kindvriendelijke wijk, met speeltuinen, scholen en sportvoorzieningen om de hoek;
- Parkeermogelijkheden direct aan huis;
- Uitstekende bereikbaarheid – korte verbindingen naar Leiden, Den Haag, Utrecht en Amsterdam.

Kortom, een perfecte gezinswoning met veel ruimte, een zonnige tuin en een ideale ligging! Benieuwd? Plan snel een bezichtiging en ervaar het zelf!

Deze vrijblijvende objectinformatie is met de meeste zorg samengesteld, maar voor de juistheid daarvan kunnen wij geen aansprakelijkheid aanvaarden. Ook kan aan de vermelde gegevens geen enkel recht worden ontleend. Alle informatie is enkel en alleen bedoeld voor de presentatie van het object en niet meer dan een uitnodiging tot het doen van een bod. Eventueel bijgevoegde plattegronden zijn slechts indicatief.

De woning is ingemeten volgens de branchebrede Meetinstructie, welke is gebaseerd op de NEN2580. De Meetinstructie is bedoeld om een meer eenduidige manier van meten toe te passen voor het geven van een indicatie van de gebruiksoppervlakte. De Meetinstructie sluit verschillen in meetuitkomsten niet volledig uit, door bijvoorbeeld interpretatieverschillen, afrondingen of beperkingen bij het uitvoeren van de meting.
Back to top