Altijd al willen wonen in het centrum van Boskoop in een rustige en kindvriendelijke woonomgeving? Zoek dan niet verder en kom deze modern afgewerkte eindwoning bezichtigen!
De Draaistok is een rustige en doodlopende straat met alleen bestemmingsverkeer. Het centrum van Boskoop met diverse winkels en horeca ligt op loopafstand. Daarnaast liggen diverse scholen, openbaar vervoer en snelwegen richting de grotere steden ook op korte afstand. Parkeren kan op de eigen parkeerplaats op het gemeenschappelijke parkeerterrein naast de woning (maandelijkse bijdrage is € 10,50).
De woning, gebouwd in 2014, heeft recent energielabel A+ gekregen. De woning beschikt over een woonoppervlakte van 133 m² en de perceeloppervlakte bedraagt 133 m². Het buitenschilderwerk is in 2025 uitgevoerd.
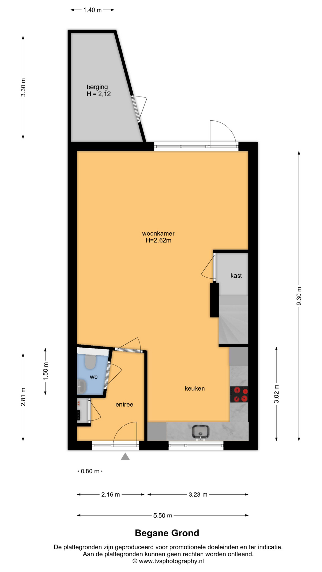
De indeling is als volgt:
Bij binnenkomst in de hal treft u de meterkast, modern toilet met fonteintje en heeft u toegang tot de woonkamer en keuken.
De moderne open L-vormige keuken bevindt zich aan de voorzijde van de woning en is voorzien van een vaatwasser, inductiekookplaat, afzuigkap, oven, magnetron en koel-/vriescombinatie. De Quooker is ter overname.
De tuingerichte woonkamer is lekker licht door de extra zijramen en de grote ramen aan de achterzijde met uitzicht op de tuin. De gehele begane grond is voorzien van vloerverwarming met een pvc vloer.
Eerste verdieping
Overloop met toegang tot de drie slaapkamers en de badkamer. De twee slaapkamers aan de achterzijde zijn beide voorzien van een Velux dakraam. De royale slaapkamer aan de voorzijde is voorzien van een vaste kastenwand en rolluiken. Op de gehele eerste verdieping ligt een moderne pvc vloer. De wanden zijn voorzien van spachtelputz.
De badkamer is modern ingericht met een ligbad, inloopdouche, toilet, wastafel met meubel, designradiator en vloerverwarming.
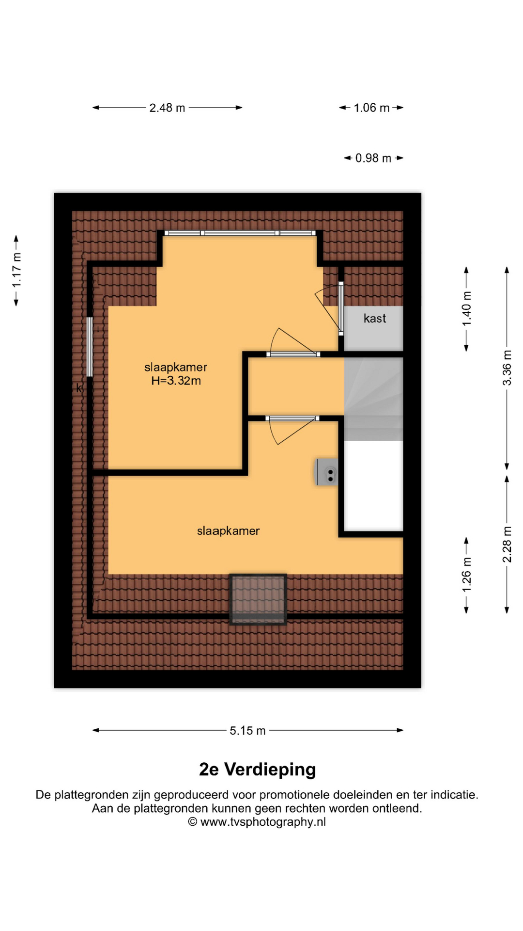
Tweede verdieping
Overloop. Ruime slaapkamer met dakkapel, leuke vide en volop bergruimte. Tweede (slaap)kamer voorzien van dakraam met opstelling wasmachine, droger, mechanische ventilatie en warmtepomp met cv-ketel. Ook hier is extra bergruimte te vinden achter de schotten.
Tuin
De achtertuin ligt op het oosten en is volledige onderheid. Achterin de tuin staat de sfeervolle tuinkamer met extra berging. De tuinkamer is met glazen schuifpanelen af te sluiten waardoor dit ook een heerlijke plek is in het voor-en najaar. Er is een achterom aanwezig en een tweede berging aan de woning.
Kortom een ruime en moderne eindwoning met een leuke ligging. Maak dus snel een afspraak voor een persoonlijke bezichtiging, misschien bent u binnenkort de nieuwe eigenaar!
Deze vrijblijvende objectinformatie is met de meeste zorg samengesteld, maar voor de juistheid daarvan kunnen wij geen aansprakelijkheid aanvaarden. Ook kan aan de vermelde gegevens geen enkel recht worden ontleend. Alle informatie is enkel en alleen bedoeld voor de presentatie van het object en niet meer dan een uitnodiging tot het doen van een bod. Eventueel bijgevoegde plattegronden zijn slechts indicatief.
De woning is ingemeten volgens de branchebrede Meetinstructie, welke is gebaseerd op de NEN2580. De Meetinstructie is bedoeld om een meer eenduidige manier van meten toe te passen voor het geven van een indicatie van de gebruiksoppervlakte. De Meetinstructie sluit verschillen in meetuitkomsten niet volledig uit, door bijvoorbeeld interpretatieverschillen, afrondingen of beperkingen bij het uitvoeren van de meting.