Skip to main content
Verkocht onder voorbehoud€ 800.000 k.k.
Verkocht onder voorbehoud
Boterbloem 31, Hazerswoude-Dorp
  • Type woning: Geschakelde twee onder een kapwoning
  • Bouwjaar: 2015
  • Aantal kamers: 6
  • Aantal slaapkamers: 5
  • Buitenruimte: Achtertuin op het noorden
  • 276 m2Perceeloppervlakte
  • 175 m2Woonoppervlakte
  • 643 m3Inhoud
  • 1 Garage
Wat een ruime en heerlijke woning is deze uitgebouwde 2-onder-1-kapwoning! Gelegen in de kindvriendelijke nieuwbouwwijk “Weidelanden” dichtbij de dorpskern van Hazerswoude-Dorp. Binnen een paar minuten bent u midden in de polder en kunt u eindeloos fietsen en wandelen door het Groene Hart. Door de centrale ligging zijn steden zoals Leiden, Den Haag, Amsterdam en Utrecht gemakkelijk te bereiken.

De woning beschikt over een oprit met parkeerplaatsen, een garage en een zonnige tuin met sfeervolle tuinkamer.
Bij binnenkomst voelt u gelijk hoe heerlijk licht en riant deze woning is. In de ruime hal bevindt zich de meterkast, het aparte toilet met fonteintje en de trapopgang naar de eerste verdieping. Onder de trap een praktische trapkast.

De royale woonkamer beschikt over veel daglicht door de erker aan de voorzijde. De en-suite deuren met vaste kasten verbinden de woonkamer met de uitgebouwde woonkeuken. Deze ruimte is door de uitbouw van drie meter met lichtstraat en pelletkachel een fijne plek om urenlang te tafelen. De moderne keuken beschikt over een fornuis met oven, afzuigkap, combioven, vaatwasser, koel-/vriescombinatie en close-in boiler. De begane grond is voorzien van vloerverwarming met een pvc vloer.

De openslaande deuren aan de achterzijde van de woning geven een leuk uitzicht op de tuin. Deze is gelegen op het noorden, is heerlijk ruim waardoor er de hele dag en avond een plek in de zon en schaduw te vinden is. De tuin is keurig aangelegd met een ruim terras, grasveld, beplanting en een overkapping. In 2025 is er een prachtige tuinkamer geplaatst, luxe afgewerkt met verlichting, een vinyl vloer en een pelletkachel.

Via de trapopgang komen we aan op de eerste verdieping. Hier bevinden zich drie slaapkamers, de badkamer en het aparte toilet. De master bedroom is gelegen aan de achterzijde van de woning en heeft een inloopkast. De twee andere slaapkamers zijn gesitueerd aan de voorzijde van de woning.

De royale badkamer heeft een ligbad, inloopdouche, verwarming en een dubbele wastafel met meubel.

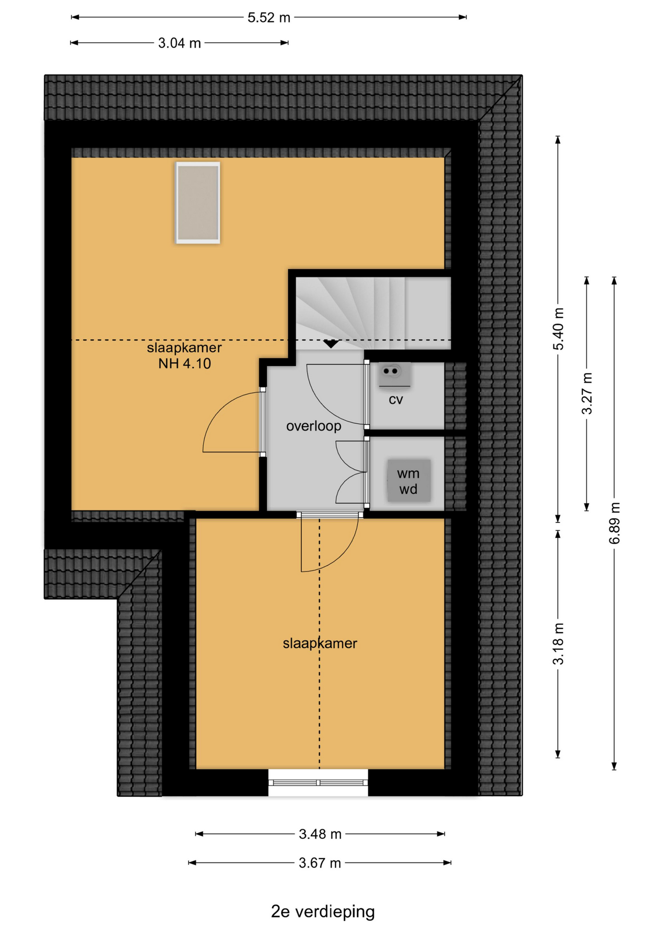
Op de tweede verdieping vinden we naast de overloop, waar een aparte ruimte is voor de HR combiketel uit 2015 en de wasmachine-/drogeraansluiting, nog twee slaapkamers. Beide verdiepingen zijn voorzien van moderne wand- en vloerafwerking.

Deze woning is zeker een bezichtiging waard door;
- Woonoppervlakte 175 m² en perceeloppervlakte 276 m²;
- Ruime garage van 20 m² met openslaande deuren;
- Bouwjaar 2015 met volledige isolatie en energielabel A;
- Onderhoudsvriendelijk met kunststof kozijnen en Keralit daklijsten;
- Vijf slaapkamers;
- Kindvriendelijke en centrale ligging.

En daarnaast nog veel meer pluspunten maar deze laten we graag zien tijdens een bezichtiging!

Deze vrijblijvende objectinformatie is met de meeste zorg samengesteld, maar voor de juistheid daarvan kunnen wij geen aansprakelijkheid aanvaarden. Ook kan aan de vermelde gegevens geen enkel recht worden ontleend. Alle informatie is enkel en alleen bedoeld voor de presentatie van het object en niet meer dan een uitnodiging tot het doen van een bod. Eventueel bijgevoegde plattegronden zijn slechts indicatief.

De woning is ingemeten volgens de branchebrede Meetinstructie, welke is gebaseerd op de NEN2580. De Meetinstructie is bedoeld om een meer eenduidige manier van meten toe te passen voor het geven van een indicatie van de gebruiksoppervlakte. De Meetinstructie sluit verschillen in meetuitkomsten niet volledig uit, door bijvoorbeeld interpretatieverschillen, afrondingen of beperkingen bij het uitvoeren van de meting.
Back to top